3 Raum Wohnung in Neubrandenburg, Rühlower Str.
3 Raum Wohnung in Neubrandenburg, Rühlower Str.
3 Raum Wohnung in Neubrandenburg, Rühlower Str.
3 Raum Wohnung in Neubrandenburg, Rühlower Str.
3 Raum Wohnung in Neubrandenburg, Rühlower Str.
3 Raum Wohnung in Neubrandenburg, Rühlower Str.
3 Raum Wohnung in Neubrandenburg, Rühlower Str.
3 Raum Wohnung in Neubrandenburg, Rühlower Str.
3 Raum Wohnung in Neubrandenburg, Rühlower Str.
3 Raum Wohnung in Neubrandenburg, Rühlower Str.
3 Raum Wohnung in Neubrandenburg, Rühlower Str.

Das passende Angebot für junge Leute!
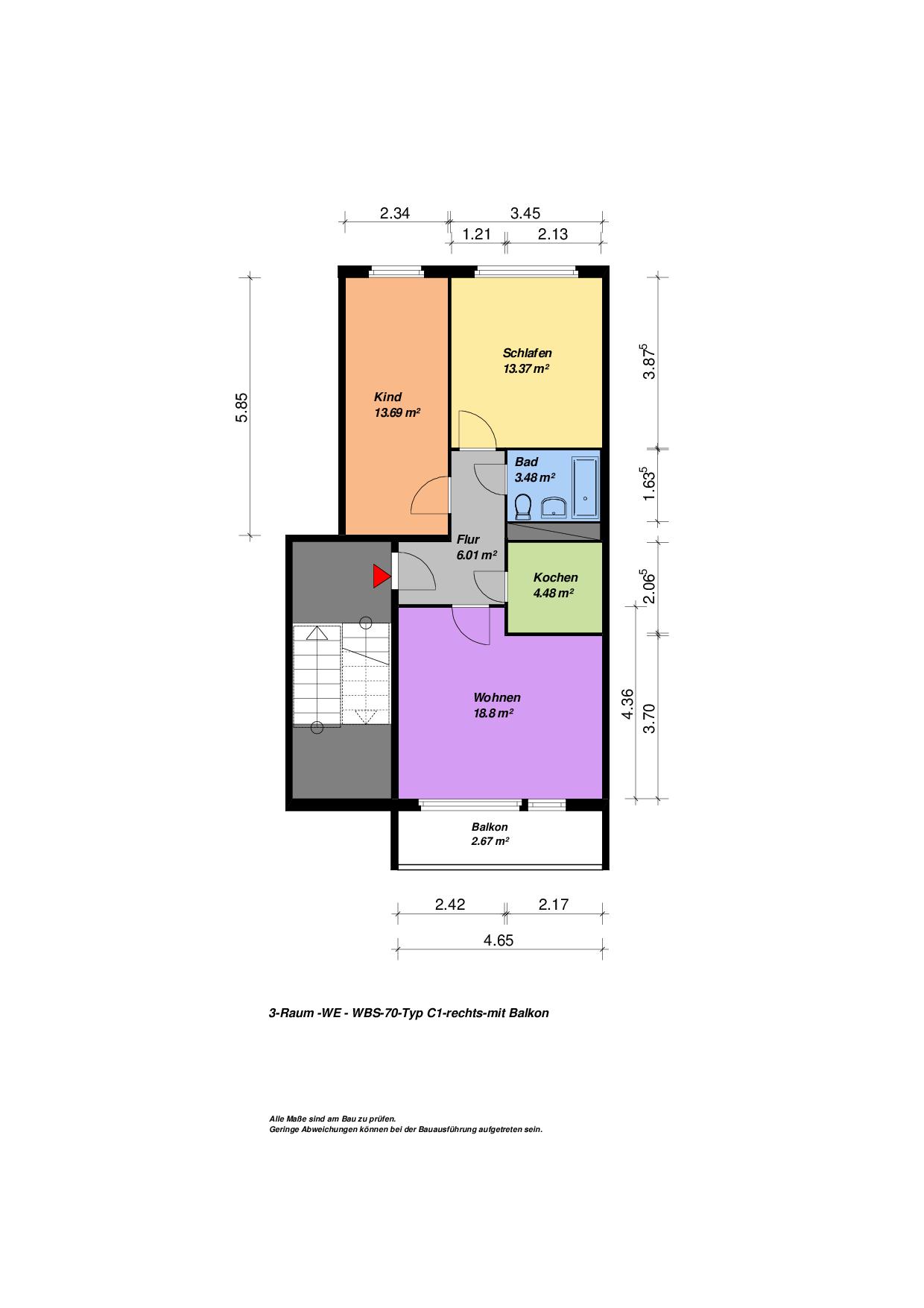
3 Zimmer - Rühlower Str. 23, 17034 Neubrandenburg

Objektbeschreibung:

Unsere Wohnanlage besitzt sechs Vollgeschosse und ist komplett unterkellert. Insgesamt bietet das Objekt über zwölf Mietwohnungen mit 3 Räumen und knapp 63 m² - ausreichend Platz für Ihre persönlichen Wohnideen. Alle Wohnungen verfügen über einen Balkon, auf welchem Sie wertvolle Zeit genießen können.

Ausstattung:

Bad mit Badewanne Fernwärme Fernwärme

Ansprechpartner/-in

Wir beraten Sie gerne auch per WhatsApp und führen Video-Besichtigungen durch.

Name:
Susanne Kruse
Telefon:
0395 4553 102
Mobil:
0177-3861707
Dieses Objekt anfragen

Objektdetails

Objektart: Wohnung(Etage)

Zimmer: 3

Wohnfläche: 62,93 m²

Etage: 6

Frei ab: sofort

Objektnummer: 46720-30065/4/48

Kosten

Nettokaltmiete:
312,00 €
Nebenkosten:
107,00 €
Heizkosten:
107,00 €
Warmmiete:
526,00 €
Genossenschaftsanteile:
1,28 €
Eintrittsgeld:
50,00 €

Energieausweis

Art des Energieausweises:
Verbrauchsausweis
Erstellungsdatum:
25.06.2018
Baujahr:
1977
Wesentlicher Energieträger:
Fernwärme
Energieverbrauchkennwert:
114.00 kWh/(m²*a)
Energieeffizienzklasse:
D

Lage:

Direkt vor Ihrer Haustür befindet sich ein gemütlicher Innenhof mit ausreichend Parkmöglichkeiten. Aber auch wenn Sie kein Auto besitzen, sind Sie von Ihrer neuen Wohnung aus sehr mobil - In der unmittelbaren Umgebung befinden sich vier Bushaltestellen! Verschiedene öffentliche Einrichtungen, wie Schulen und Kitas, Ärzte und Apotheken sind ebenfalls nur einen Katzensprung entfernt.