2 Raum Wohnung in Neubrandenburg, Jahnstraße
2 Raum Wohnung in Neubrandenburg, Jahnstraße
2 Raum Wohnung in Neubrandenburg, Jahnstraße
2 Raum Wohnung in Neubrandenburg, Jahnstraße
2 Raum Wohnung in Neubrandenburg, Jahnstraße

Achtung ... lukrative Gewerbefläche!
2 Zimmer - Jahnstraße 19, 17033 Neubrandenburg

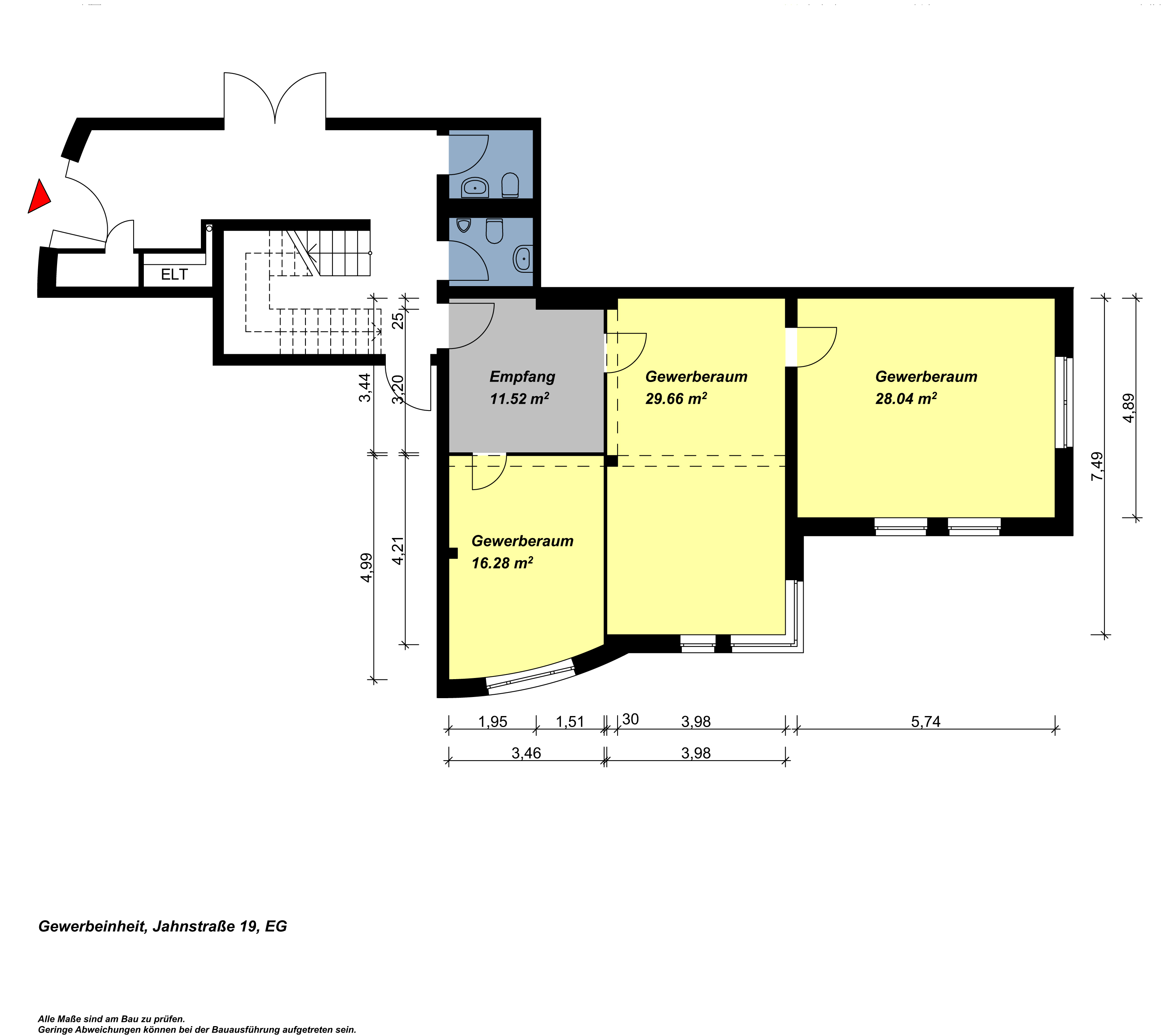
Objektbeschreibung:

Das gut erreichbare und barrierefreie Gewerbeobjekt befindet sich im Erdgeschoss. Das Gewerbeobjekt liegt nicht weit entfernt von der Innenstadt.

Ausstattung:

Gas Gäste WC Zentralheizung

Ansprechpartner/-in

Wir beraten Sie gerne auch per WhatsApp und führen Video-Besichtigungen durch.

Name:
Anja Olbricht
Telefon:
0395 4553 107
Mobil:
0177-3861714
Dieses Objekt anfragen

Objektdetails

Objektart: Büro/Praxen

Zimmer: 2

Bürofläche
80,00 m²

Frei ab: sofort

Objektnummer: 46720-20107/1/9

Kosten

Nebenkosten:
120,00 €
Heizkosten:
88,00 €
Kaution:
1.120,00 €
Warmmiete:
913,92 €
Genossenschaftsanteile:
0,00 €
Eintrittsgeld:
50,00 €

Energieausweis

Art des Energieausweises:
Verbrauchsausweis
Erstellungsdatum:
24.04.2014
Baujahr:
1997
Wesentlicher Energieträger:
Gas
Energieverbrauchkennwert:
134.00 kWh/(m²*a)
Energieeffizienzklasse:
E

Lage:

Das Objekt liegt am Rande der Stadtmauer. Das Stadtzentrum mit dem Marktplatzcenter und den verschiedenen Einkaufs- und Erholungsmöglichkeiten ist in wenigen Minuten fußläufig zu erreichen. Zum Bahnhof haben Sie ebenfalls nur einen kurzen Fußweg, um in die anderen Stadtteile oder auch außerhalb der Stadt zu gelangen. Der Tollensesee ist ebenfalls auf kurzem Wege erreichbar.